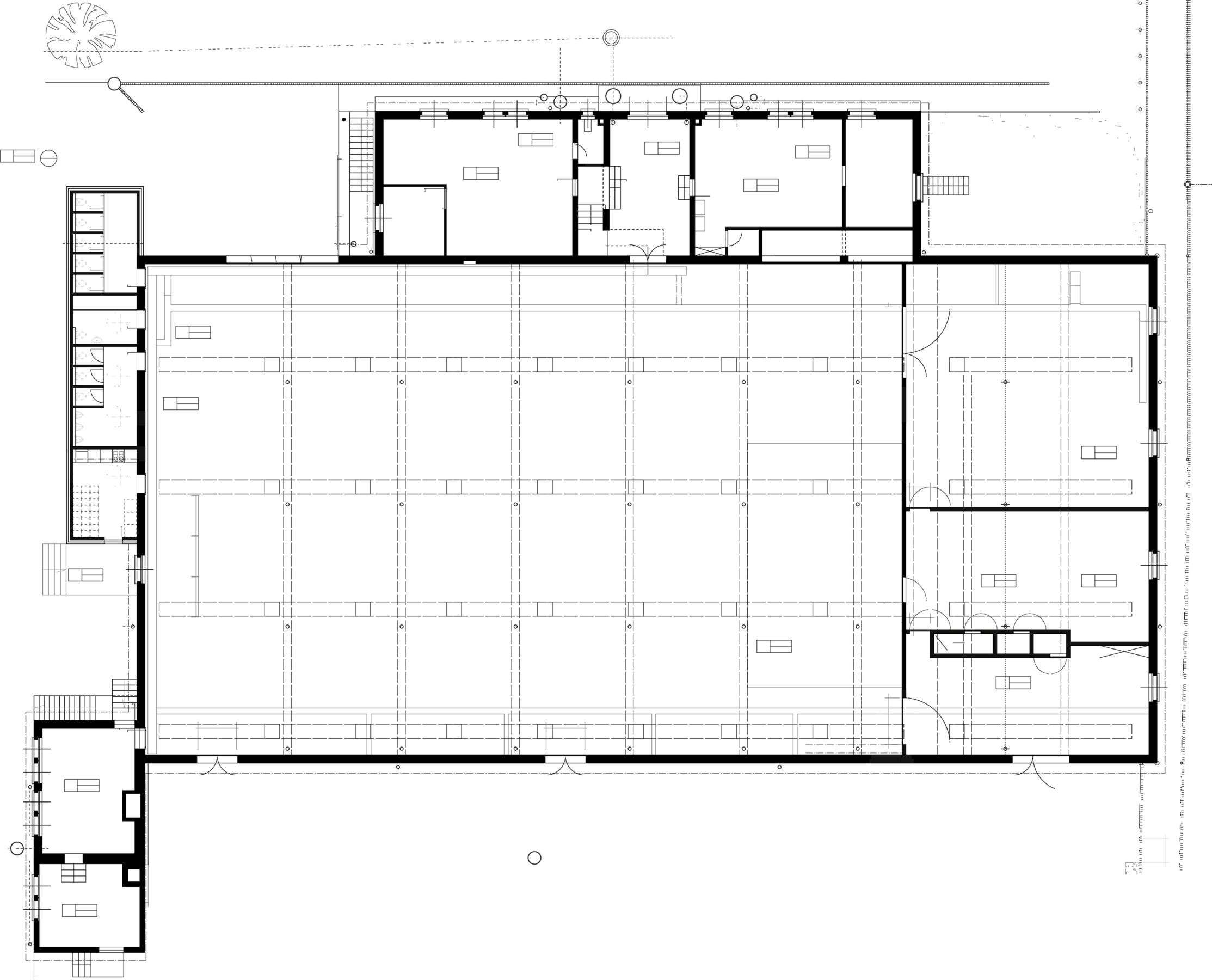
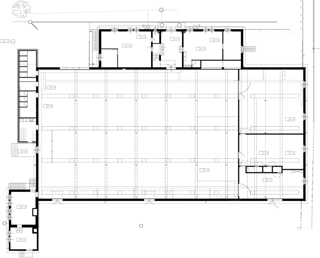
Die im Jahr 1908 erbaute ehemalige Textilfabrik besticht durch ihren einmaligen Industriecharme. Die Haupthalle lässt modulare Raumeinteilungen zu und kann auch von kleineren Gesellschaften ideal zu und kann auch von kleineren Gesellschaften ideal genutzt werden. Modernste Eventtechnik steht für multimediale Veranstaltungen zur Verfügung.
Zwicky Fabrik
Wigartenstrasse 13, Fällanden




| Raumangebot | ||||
|---|---|---|---|---|
Haupthalle800m² |
700 Personen | 500 Personen | 400 Personen | 600 Personen |
Vorhandenes Mobiliar
BarHolzstühle
Bistrotische
Klapptische
Stellwände
Bühne
Beamer/ Leinwand
Ton- Lichtsystem
Standort
Andere Locations
Chapiteau Zelt, BurgdorfKunsthaus Zürich Erweiterungsbau, Zürich
Pavillon Le Corbusier, Zürich
Transparentes Zelt, Wil
Aegerihalle, Unterägeri
Gleisarena, Zürich
kuk | Kultur- und Kongresshaus Aarau, Aarau
Museum für Gestaltung, Zürich
Ritterhaus Bubikon, Bubikon
Schiffbau, Zürich
Seegüetli, Horgen
Seehof Küsnacht, Küsnacht
Stufenbau, Ittigen
Werfthalle Zürich, Zürich
ZKO-Haus, Zürich
Werkstadt Zürich, Zürich
Alte Cigarettenfabrik, Zürich
St. Charles Hall, Meggen
Orangerie, Aarau
Alte Sihlpapierfabrik, Zürich
Enea Baummuseum, Jona SG
Fondation Beyeler, Riehen
Forum Paracelsus, Sankt Moritz
Signau House, Zürich
Kornschütte im Rathaus, Luzern
Kunsthaus Zürich, Zürich
Künzli Holz, Davos Dorf
Luma Westbau / schwarzescafé, Zürich
LS Stäfa – Zürichsee, Zürich
Schloss Liebegg, Gränichen
Schulhaus Hirschengraben, Zürich
Showroom 39, Küsnacht
Traumgarten, Thalwil
Villa Tobler, Zürich





